
宇都宮市岩曽町にて、実際の建物をご覧いただける完成見学会を開催します。
実際にこれからご家族が暮らす「等身大の住まい」をご覧いただける貴重な機会です。
こだわりの間取りと住まいの魅力をぜひ現地でご体感ください。
現在、見学予約を受け付けております。

木の温もりを感じるやさしい住まいが、2026年1月に誕生します。
自然素材の質感とモダンなデザインが調和した空間は、家族の時間を豊かに彩ります。
光と風を取り込み、四季の移ろいを感じながら、心地よい暮らしを実現できる全2邸です。
物件概要
| 項目 | A棟 | B棟 |
| 価格 | 3,300万円(税込) | 3,300万円(税込) |
| 土地面積 | 165.36㎡(49.92坪) | 154.90㎡(46.76坪) |
| 1階床面積 | 43.88㎡(13.25坪) | 43.88㎡(13.25坪) |
| 2階床面積 | 45.54㎡(13.75坪) | 45.54㎡(13.75坪) |
| 延床面積 | 89.42㎡(27.00坪) | 89.42㎡(27.00坪) |
| 間取り | 3LDK | 3LDK |
| 駐車場 | 2台可+EV充電対応 | 2台可+EV充電対応 |
所在地:宇都宮市岩曽町1391-13
物件の特徴
- 南向きの2階リビング♪ 心地よい陽光が降り注ぎ、快適に過ごせる空間
お風呂と洗面台が2階に完備! ベランダへの動線も便利で、家事がもっとスムーズに◎
収納充実(クローゼット・パントリー付き)
省エネ性能住宅(断熱等性能等級4)
浴室乾燥機
システムキッチン(小さいお子様にも安心なIHコンロ3口)
エアコン2基(つけちゃいました!)
新たな断熱性能基準(2025年基準)に適合した、省エネ性能の高い高断熱住宅です。
冷暖房効率に優れ、一年を通して室内は快適。気になる光熱費もぐっと抑えられます。
さらに、「省エネ基準適合住宅」として住宅ローン控除の優遇対象に。
税制面でも賢くサポートされる、まさにこれからの時代にふさわしい住まいです。
「快適さ」「経済性」「環境へのやさしさ」すべてを満たす新基準住宅で、
新しい暮らしを始めませんか?
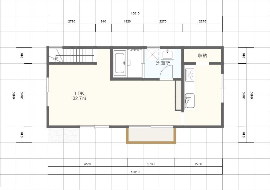
間取り図
1F

2F

内装・設備
| 項目 | A棟 | B棟 |
|
キッチン |
![]() |
![]() |
| バスルーム (積水ホームテクノ Roomy) |
![]() |
![]() |
| 床材 |
|
![]() ブラックチェリー |
| トイレ (INAX アメージュ便器) |
|
![]() |
| 洗面化粧台 (LIXIL エスタボウル一体タイプ) |
|
![]() |
内観・外観 (イメージ図)
2F リビング・ダイニング




外観

駐車場

インフラ設備
水道:公営水道
排水:公共下水道
ガス:プロパンガス
道路:西側/公道 幅員 約4.0m、アスファルト舗装
周辺環境
最寄駅:JR宇都宮駅まで 約3.7km
バス停:宇都宮化成前 約190m
小学校:宇都宮市立豊郷南小学校 約1.1km
中学校:宇都宮市立陽北中学校 約2.5km
スーパー:サンユー 岩曾店 約500m
スーパー:フードオアシスOTANI 御幸ヶ原店約1.5km
コンビニ:セブン-イレブン 宇都宮岩曽東店 約450m
ドラックストア:ツルハドラッグ 宇都宮岩曽店 約170m
資金計画例
お支払いのシュミレーション(例)物件価格3,300万円を住宅ローンで借り入れた場合の資金計画と返済シミュレーションをご提示いたします。
1.資金計画
物件価格:33,000,000円(税込)
2.諸費用(概算金額)
項目 概算金額 備考 登記費用・印紙代 約 300,000円 所有権移転登記など ローン事務手数料 約 100,000円 金融機関により異なる 火災保険料 約 200,000円 5年分前払い想定(家財1,000万円付算出・地震保険なし) 固定資産税 約 120,000円 不動産取得税 約 850,000円 仲介手数料(購入時) 約 1,155,000円 売買価格 ✕ 3%+6万円+消費税 合計 約 2,725,000円 概算
3.返済シュミレーション
■変動金利0.75%の場合
借入金額:33,000,000円
期間:35年
金利:0.75%(変動)※8大疾病を除く
毎月返済額:約 88,600円
ボーナス月の加算額:0円
※融資に伴う諸経費は除いております
※上記は概算の試算です。実際の金利や返済額は金融機関の審査結果・時期により異なります。
住宅ローンのご相談も無料で承っております。お気軽にご相談ください。
内覧予約・お問い合わせ
※内覧は予約制とさせていただきます。
ご希望の方は下記の電話またはメールにてご連絡ください。
電話での予約・お問い合わせTEL:028-614-1017
(受付時間 9:00〜17:00)
メールでの予約・お問い合わせmail:info@echo1.co.jp
件名:内覧予約/お問い合わせ
本文に以下を記入してください:
- お名前
- 電話番号
- 希望内覧日時(第1希望・第2希望)
- ご質問内容(任意)
※担当者より折り返しご連絡いたします










