価格 |
3,300万円 |
||
|---|---|---|---|
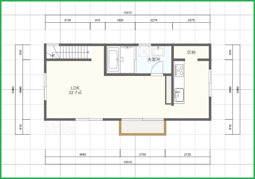
間取 |
3LDK+2S |
築年月 |
2026/01(建築予定) |
建物面積 |
89.42m²(27.04坪) |
土地面積 |
165.36m²(50.02坪) |
所在地 |
宇都宮市岩曽町1391-13 |
||
周辺環境 |
JR宇都宮駅約3.7km |
お電話でのお問い合わせ
物件コード:50509
お電話でお問い合わせの際は、物件コードをお伝えください。
028-614-1017
営業時間:9:00 AM - 5:00 PM
定休日:祝日
ポイント
POINT
JR宇都宮駅約3.7km、セブン-イレブン 宇都宮岩曽東店約450m、サンユー 岩曾店約500m、ツルハドラッグ 宇都宮岩曽店約170m
物件詳細DETAIL
建物構造 |
木造2階建 |
間取詳細 |
|
|---|---|---|---|
建ぺい率 |
60% |
容積率 |
160% |
地目 |
宅地 |
用途地域 |
第二種中高層住居専用地域 |
取引態様 |
専任媒介 |
私道面積 |
- |
引渡時期 |
2026/02 上旬 |
土地権利 |
所有権 |
借地料 |
- |
借地期間 |
- |
セットバック |
建築確認番号 |
||
接道 |
西 4m(幅員) 公道 |
諸費用 |
|
学区 |
豊郷南小 1,100m
陽北中 2,500m |
||
特色/設備 |
駐車場2台、公営水道、公共下水道、プロパンガス、お風呂と洗面台が2階に完備!ベランダへの動線も便利で家事がもっとスムーズに◎ |
||
情報更新日 |
2025年11月24日 |
次回更新予定日 |
2025年11月25日 |
取引条件有効期限 |
2025年12月01日 |
※掲載されている物件データが現状と異なる場合は現状を優先します。
周辺地図MAP
有限会社エコーCOMPANY
所在地 |
栃木県宇都宮市中今泉3丁目11-11 |
||
|---|---|---|---|
免許番号 |
栃木県知事免許(5)第4225号 |
||
会員 |
(公社)全国宅地建物取引業保証協会
(公社)首都圏不動産公正取引協議会
|
||
電話番号 |
028-614-1017 |
FAX番号 |
028-614-1018 |
営業時間 |
9:00 AM - 5:00 PM |
定休日 |
祝日 |
