
価格 |
4,300万円 |
||
---|---|---|---|
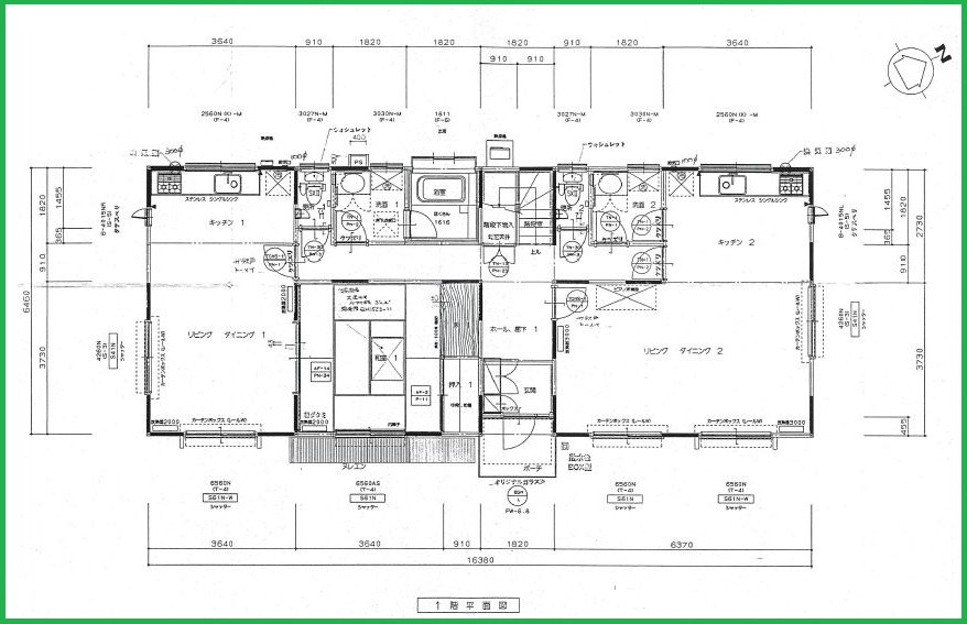
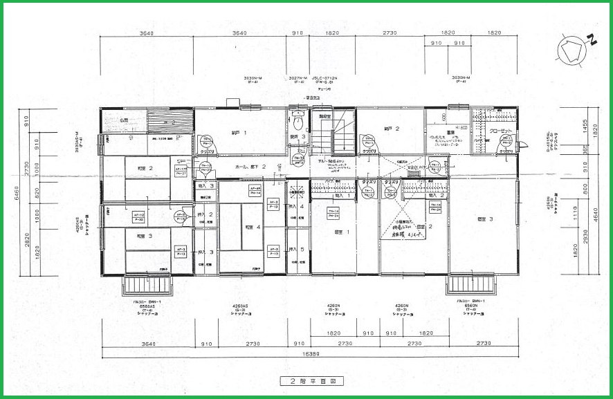
間取 |
7LDK+LDK+2納戸 |
築年月 |
1992/03(築33年) |
建物面積 |
210.8m²(63.76坪) |
土地面積 |
264.87m²(80.12坪) |
所在地 |
下野市緑3丁目2-8 |
||
周辺環境 |
JR治医大駅約900m |
お電話でのお問い合わせ
物件コード:50434
お電話でお問い合わせの際は、物件コードをお伝えください。
028-614-1017
営業時間:9:00 AM - 5:00 PM
定休日:祝日
ポイント
POINT
JR治医大駅約900m、セブン-イレブン 南河内緑店約500m、たいらや 自治医大店約750m、ドラッグストア マツモトキヨシ 自治医大店約650m
物件詳細DETAIL
建物構造 |
木造2階建 |
間取詳細 |
|
---|---|---|---|
建ぺい率 |
60% |
容積率 |
80% |
地目 |
宅地 |
用途地域 |
第一種低層住居専用地域 |
取引態様 |
専任媒介 |
私道面積 |
- |
引渡時期 |
即時 |
土地権利 |
所有権 |
借地料 |
- |
借地期間 |
- |
セットバック |
建築確認番号 |
||
接道 |
北 10m(幅員) 公道 10.8m(接面)
東 6m(幅員) 公道 15.45m(接面) |
諸費用 |
|
学区 |
緑小 250m
南河内第二中 350m |
||
特色/設備 |
北東角地、公営水道、公共下水道、駐車場2台、都市ガス、2世帯向け住宅、契約不適合責任免責 |
||
情報更新日 |
2025年10月12日 |
次回更新予定日 |
2025年10月13日 |
取引条件有効期限 |
2025年10月19日 |
※掲載されている物件データが現状と異なる場合は現状を優先します。

有限会社エコーCOMPANY
所在地 |
栃木県宇都宮市中今泉3丁目11-11 |
||
---|---|---|---|
免許番号 |
栃木県知事免許(5)第4225号 |
||
会員 |
(公社)全国宅地建物取引業保証協会
(公社)首都圏不動産公正取引協議会
|
||
電話番号 |
028-614-1017 |
FAX番号 |
028-614-1018 |
営業時間 |
9:00 AM - 5:00 PM |
定休日 |
祝日 |